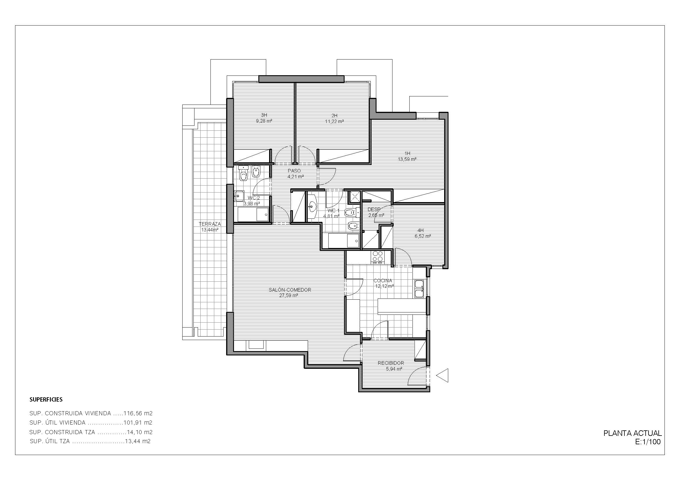
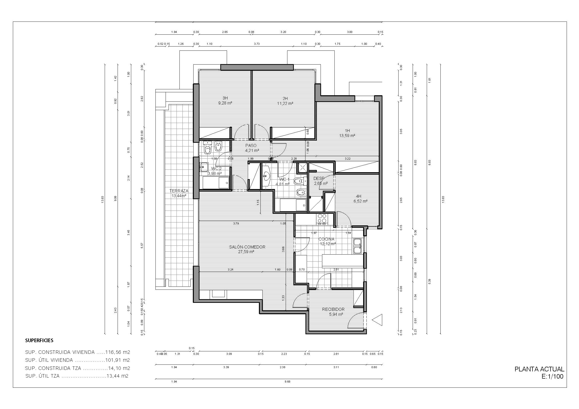
Piso de 144m2 constr. (según Catastro) + 14m2 terraza en venta en Gràcia, con piscina comunitaria.

Barcelona (Gracia)

Ref. 1274 144 m2 14,10 m2 4 2 1 4
venta: 740.000 
venta anterior: 790.000 €

¡Bienvenido a tu nuevo hogar en el corazón de Gràcia! Este espectacular piso de 144 m² construidos (según Catastro) , cuenta con 4 amplias habitaciones y 2 baños completos.

Vivienda, en excelente estado de conservación, muy cuidada, cuenta con dimensiones regulares y es completamente exterior.

Además, dispone de un balcón-terraza de 14 m2 a pie de salón, perfecto para colocar una mesita y cuatro sillas, ideal para disfrutar de un café por la mañana o un aperitivo. La propiedad también incluye la opción de adquirir un garaje a nivel calle. El edificio dispone de 2 ascensores para mayor comodidad y conserje en horario laboral semanal.

No dejes pasar la oportunidad de vivir en uno de los barrios más vibrantes de Barcelona. ¡Contáctanos para más información y ven a descubrir tu nuevo hogar!

Parque municipal junto al edificio y paradas de bus y metro a menos de 200m. Todos los servicios próximos. Biblioteca Municipal cerca. Supermercados. Farmacia. 

Índice de alquiler

Año de construcción 1977
Construidos 144 m2
Precio/m² 5.139
Terraza 14,10 m2
Dormitorios 4
Baños 2
Cocina Amueblada
Calefacción Central
Trastero
Garajes 1
Altura/Planta 4
Carp. Exterior Aluminio
Carp. Interior Madera
Orientación Este
Estado Buen estado
Tipo de suelo Marmol
Ascensor
Piscina comunitaria
Zonas comunes
Calificación Energética (E) VER
Luz
Gas
Agua
Conserje

Inmuebles similares:

 

¡Vive en una ubicación privilegiada en Barcelona! Este piso en Enric Granados, en una planta alta, cuenta con 3 habitaciones, 2 baños, balcón y ascensor. Disfruta de luz natural, vistas despejadas y la vibrante vida del barrio, con restaurantes, parques y excelente conexión de transporte. ¡Una oportunidad única para tu nuevo hogar!

775.000 €
 110 m2  3  2
 

Excelente vivienda de 100m2 construidos y aprox. 90m2 útiles, con muy buena distribución, diseñada por Oriol Bohigas y su equipo. Cuenta con 3 habitaciones y 2 baños, con zona comunitaria con piscina y plaza de garaje en la finca de buena maniobrabilidad

750.000 €
 100 m2  3  2
Solicita información

Si deseas más información sobre esta propiedad, por favor, rellena el formulario: